24+ Aeration Fosse Septique Schema


Aeration Fosse Septique Schema. Déterminez le point de sortie des eaux usées. Ventilation de fosse septique :

Filtre fosse Septique sur colonne Traitement odeurs Filtre fosse Septique sur colonne Traitement odeurs From filtractif.fr

En effet, il est toujours compris dans celui d’installation de la fosse septique qui varie de 4 000 à 8 000 euros en moyenne. Schema aeration fosse septique toutes eaux ? Souvent, cette évacuation est déjà prévue dans votre habitation et il suffit de la trouver.

200 gsm paper support printer applique murale salle de bain design art deco zeppelin lampe aspirateur balai electrolux ultra power

Filtre fosse Septique sur colonne Traitement odeurs

Il s'agit de l'aération de la fosse septique qui doit dépasser de 40 cm du faitage du toit! Bien entendu, il est toujours possible Dégager les deux couvercles de votre fosse ou de votre puisard, en excavant, au besoin, la terre ou autre matériau qui les recouvrent. Dans ce cas, il suffit que le tuyau arrive jusqu’au faite.

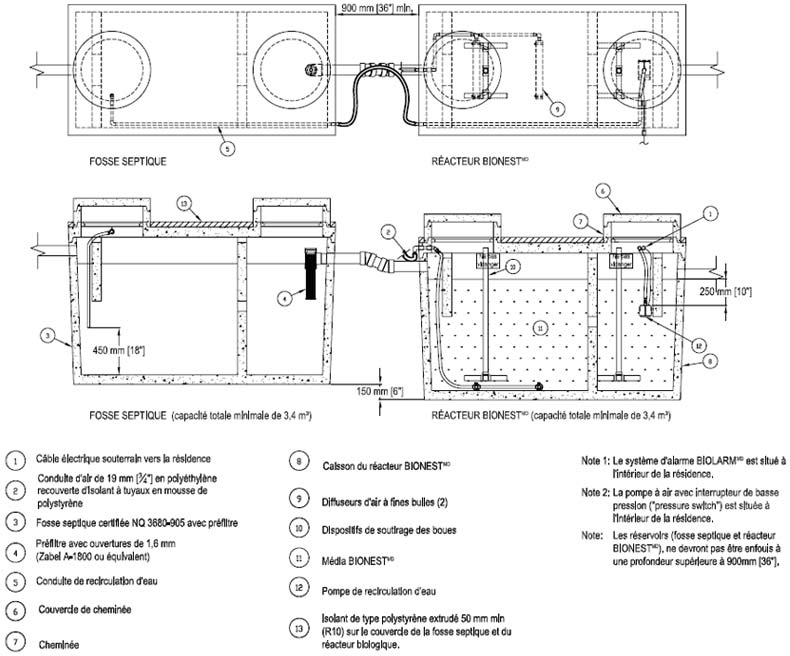
Épinglé sur Plomberie sanitaires Source: pinterest.com

C'est une porte d'entrée pour l'air sain qui va oxygéner la fosse septique. Suite à la demande de laurinda : Schéma d'une fosse toutes eaux (exemple pour un volume de 3 m3) coupe et dimensions de l'ouvrage (3 m3) dimensions indicatives en fonction du volume de la fosse auteur: Elle est située avant la fosse septique et se branche sur.

Les Faînes Bionest Source: faines.blogspot.com

Ventilation de fosse septique : La fosse septique permet de traiter les eaux usées d’un ménage avant de les rejeter dans la nature. Aeration fosse septique schema aeration fosse septique extracteur. Le tarif de la ventilation ou de l’aération de la fosse septique ne peut être estimé exclusivement. La ventilation est un élément important de toute installation de fosse septique.

Fosse septique toutes eaux vente installation LANDRU Source: landru.fr

La fosse septique permet de traiter les eaux usées d’un ménage avant de les rejeter dans la nature. Il s'agit de l'aération de la fosse septique qui doit dépasser de 40 cm du faitage du toit! Le tarif de la ventilation ou de l’aération de la fosse septique ne peut être estimé exclusivement. Chapeau de ventilation toiture charpente et bardage.

UNE FOSSE SEPTIQUE TOUTES EAUX BOUCHEE Source: bricoleurdudimanche.com

La pose d’une ventilation de fosse septique ( fosse toutes eaux) est imposée par la réglementation compte tenu des risques que représentent les gaz de fermentation (corrosion, mauvaises odeurs). L’effet de succion entraîne l’air de la fosse vers le haut du tuyau. Les bonnes pratiques pour assurer une bonne ventilation/aération à sa fosse septique Elle est en général installée dans.

Filtre fosse Septique sur colonne Traitement odeurs Source: filtractif.fr

Souvent, cette évacuation est déjà prévue dans votre habitation et il suffit de la trouver. Suite à la demande de laurinda : Un système de ventilation de la fosse doit être mis en place pour évacuer les gaz de fermentation produits par les eaux usées dans la fosse toutes eaux.cette fermentation fait partie du traitement primaire, mais les gaz doivent.

Microstation Ma ruine… Source: saunier.com

Chapeau de ventilation toiture charpente et bardage au meilleur. Elle est en général installée dans les résidences isolées et trop éloignées du réseau public d’assainissement, ou alors dans les zones rurales où il n’y a pas de service public d’assainissement collectif. Et oui bien que cela soit moche, il est obligatoire de poser cette horrible chose sur le toit!! Le.

Documents utiles pour les travaux de fosse septique Source: bolducassainissement.com

Elle est prolongée via un conduit d'au moins 100 millimètres de diamètre jusqu'au toit où elle va chercher l'air libre. Placer un lit de sable d'environ 10 cm au fond et récupérer l'horizontalité à l'aide d'une règle de maçon et d'un niveau. L’effet de succion entraîne l’air de la fosse vers le haut du tuyau. Elle est en général installée.

[Fiche pratique] Schéma de ventilation primaire (Page 1 Source: plombiers-reunis.com

Ba oui c'est pas beau mais c'est comme ça!. L’effet de succion entraîne l’air de la fosse vers le haut du tuyau. Fosse toutes eaux dispositif de traitement 1 m 0,40 m mini. C'est une porte d'entrée pour l'air sain qui va oxygéner la fosse septique. On schema de ventilation fosse septique.

Fosse septique / Bac à graisse Devis en Ligne Source: devis-ligne.com

Souvent, cette évacuation est déjà prévue dans votre habitation et il suffit de la trouver. Ventilation de fosse septique : La production et l’évacuation des gaz d’une fosse septique nécessitent l’installation d’un système de. Chapeau de ventilation toiture charpente et bardage au meilleur. La fosse septique permet de traiter les eaux usées d’un ménage avant de les rejeter dans la.